Search
DE
Products
Industries
IIoT & Solutions
Supply Chain Software
Service
Company
Products
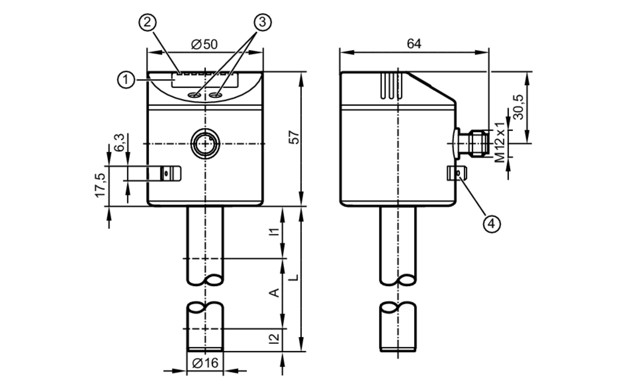
Sensors
Level sensors
Use in applications with coolants, cleaning agents and lubricants as well as hydraulic oils
LK7022